PORTFÓLIO - Projetos
Eis alguns dos trabalhos realizados de maior relevância:
- Pág.
-
2025 / 2026
Projeto de Habitação Unifamiliar e Piscina em 2 lotes
Courelas da Brava - AUGI 40A - Quinta do Conde - Sesimbra
-
2023 / 2023
Projeto de remodelação de apartamento
Transformação de uma tipologia T1+1 em T2, na Torre da Marinha - Seixal
-
2022 / 2022
Ampliação de Edifício Comercial
Estudo para a ampliação máxima da área de construção (8.662,75 m2) num terreno com a área de 21.900,00 m2, versus número de lugares de estacionamento (576), acessibilidades, enquadramento e cumprimento do índice de permeabilidade do solo. Casal do Marco - N10 - Seixal
-
2019 / 2022
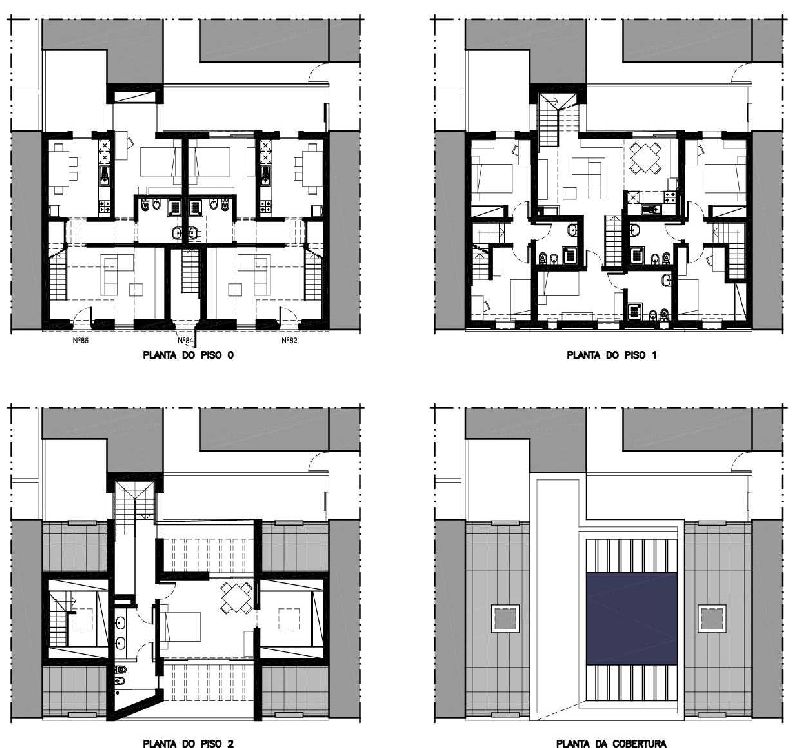
Projeto de Habitação Coletiva
Edifício com 3 apartamentos situado na Área de Reabilitação Urbana do Núcleo Histórico do Seixal
-
-
-
2016 / 2021
Pólo de Solidariedade Social - FCA: O Futuro Começa Aqui!
Equipamento na Costa da Caparica com várias valências sociais promovido pela Fundação Arcelina Victor dos Santos. Edifício com cerca de 1.870 m2 de área de construção.
-
2016 / 2019
Ampliação e Remodelação de Habitação Bifamiliar
Rua Elias Garcia nº55 - Almada - Núcleo Histórico
-
-
2016 / 2017
Projeto de remodelação de apartamento para transformação em alojamento local, Praça dos Restauradores - Lisboa
Inn Chiado Restauradores Suite Primes
-
-
2016 / 2016
Projeto de escritório, Avenida das Comunidades Lusíadas, Praia da Rocha – Portimão
PA - Projectos e Avaliações no Algarve
-
2011 / 2015
Renovação e alteração de habitação bi-familiar, Rua Visconde de Almeida Garrett – Almada
-
-
-
-
-
2012 / 2012
Remodelação e implementação de imagem para cafetaria, Quinta da Atalaia - Amora
Cafetaria Aroma Perfeito
-
2012 / 2012
Implementação de imagem e design interior de loja
Loja It-Style no Centro Comercial Rio Sul Shopping, Torre da Marinha - Seixal
-
-
-
2010 / 2011
Oficina de Reparação Automóvel, Vale Figueira – Almada
Alterações ao Pavilhão Auto-Monumental do Laranjeiro
-
2010 / 2010
Estudo para a recuperação e renovação de um edifício de habitação colectiva, Rua Bulhão Pato – Almada
Edifício inserido no núcleo antigo de Almada
-
2010 / 2010
Estudo de Remodelação de um Edifício Comercial, Estrada Nacional nº10 – Casal do Marco, Seixal
-
-
2010 / 2010
Concurso público – Santo Tirso
Reabilitação dos Edifícios da Quinta de Fora do Mosteiro de S. Bento
-
-
2009 / 2009
Construção nova de pavilhão ROVE, Rua Costa Pinto – Paço de Arcos
Pavilhão EMEPC - Estrutura de Missão para a Extensão da Plataforma Continental
-
2008 / 2009
Remodelação de espaço em edifício estatal, Rua da Junqueira – Lisboa
Para instalação EMAM - Estrutura de Missão para os Assuntos do Mar
-
2008 / 2009
Loteamento e Urbanização, Courelas da Brava – Sesimbra
Coordenação técnica das Infra-estruturas das AUGI’s 40 e 40A
-
-
-
-
-
-
-
-
-
-
-
-
-
-
-
-
2004 / 2004
Concurso Público para Extensão de Saúde, Castelo do Neiva – Viana do Castelo
4º Classificado (em 38)
-
2004 / 2004
Concurso Público para recuperação do edifício DHU/Sul, Vila Franca de Xira
3º Classificado (em 26)
-
2004 / 2004
Concurso Público para Pavilhão Gimnodesportivo, Castanheira do Ribatejo – Vila Franca de Xira
21º Classificado (em 36)
-
-
2003 / 2003
Apart-hotel – 2ª fase (aumento da área de intervenção), Miramar
(Apenas trabalho de colaboração com Gesto Criativo – Atelier de Arquitectura Lda.)
-
2003 / 2004
Concurso Público da Pousada da Lousã – 1º lugar, Lousã
(Apenas trabalho de colaboração com Gesto Criativo – Atelier de Arquitectura Lda.)
-
2002 / 2003
Loteamento da Quinta da Francelha, edifício de habitação coletiva, hotel de 4 estrelas, Prior Velho – Lisboa
(Apenas trabalho de colaboração com Gesto Criativo – Atelier de Arquitectura Lda.)
-
2003 / 2003
Pavilhão industrial para comércio de automóveis, Parque Industrial do Seixal
(Apenas trabalho de colaboração com Gesto Criativo – Atelier de Arquitectura Lda.)
-
2002 / 2002
Recuperação e Ampliação de um Apart-Hotel, Miramar
(Apenas trabalho de colaboração com Gesto Criativo – Atelier de Arquitectura Lda.)
-
2002 / 2002
Moradia Chamiço, Quinta das Laranjeiras – Seixal
(Apenas trabalho de colaboração com Gesto Criativo – Atelier de Arquitectura Lda.)
-
2001 / 2001
Pavilhão Industrial, Ecoparque - Palmela
(Apenas trabalho de colaboração com Gesto Criativo – Atelier de Arquitectura Lda.)
-
2001 / 2001
Reabilitação e construção de área comercial e estacionamento subterrâneo. Campo Pequeno - Lisboa.
(Apenas trabalho de colaboração com Menir – Atelier de Arquitectura Lda.)
-
2000 / 2001
Remodelação e transformação de cobertura num apartamento, Chiado - Lisboa
Projeto académico.
-
-
-
