PROJETO DE EXECUÇÃO - Exemplo para habitação familiar
- Pág.
-
REDES ELÉTRICAS
São desenhadas as plantas de todos os pisos, com indicação do tipo e da localização de todos os pontos de iluminação, interruptores, quadros elétricos, tomadas, aparelhos fixos (ex: ar condicionado, banheiras de hidromassagem) etc.
-
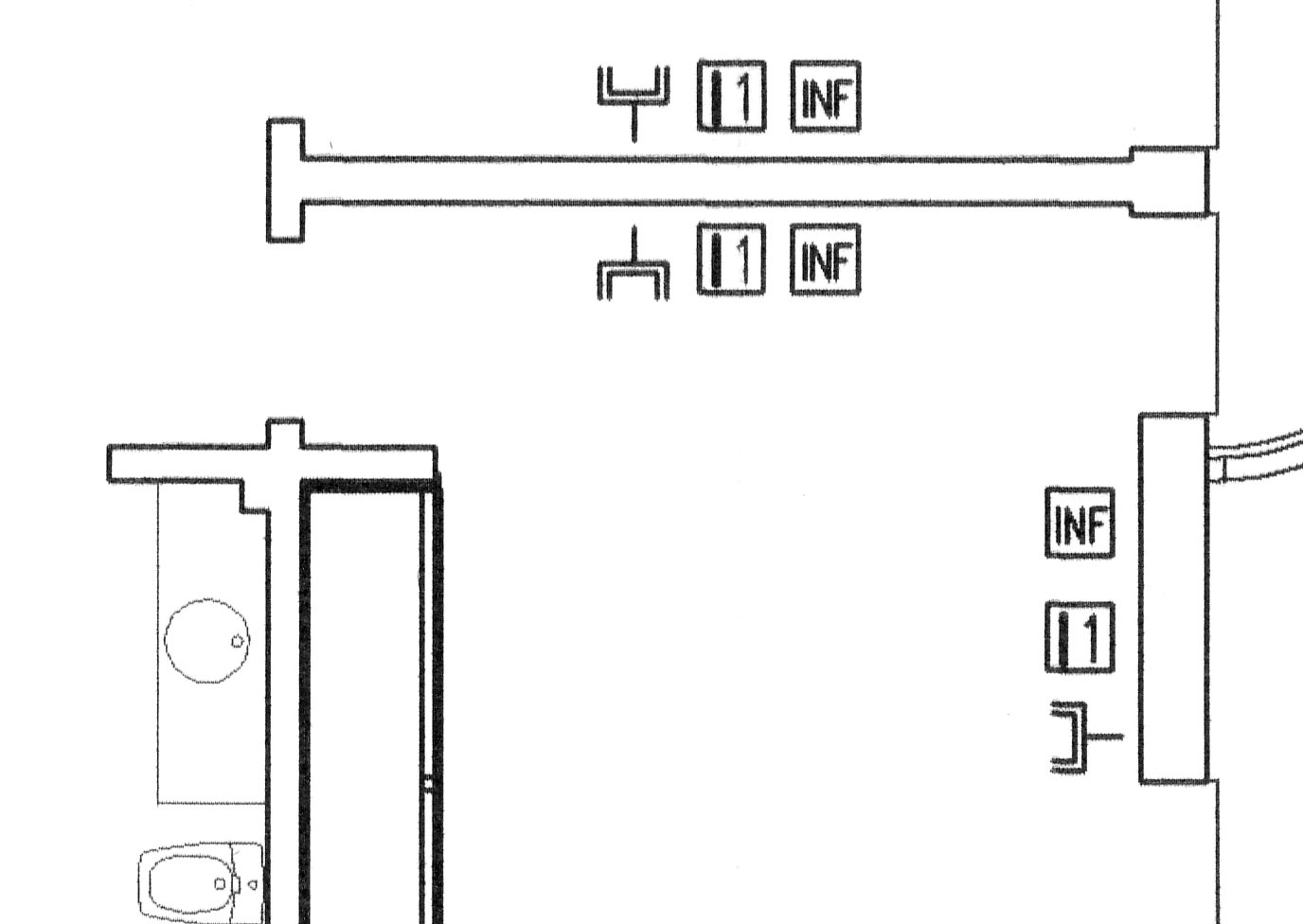
REDES BAIXAS
São desenhadas as plantas de todos os pisos, com indicação da localização de todas as tomadas de TV, Som, RDIS, Telefone e aparelhos similares (ex: amplificador de Sinal, rede informática).
-
REDE DE SEGURANÇA CONTRA INTRUSÃO
São desenhadas as plantas de todos os pisos, com indicação da localização de todos os detetores volumétricos e aparelhos similares (ex: central de comando, sirene).
-
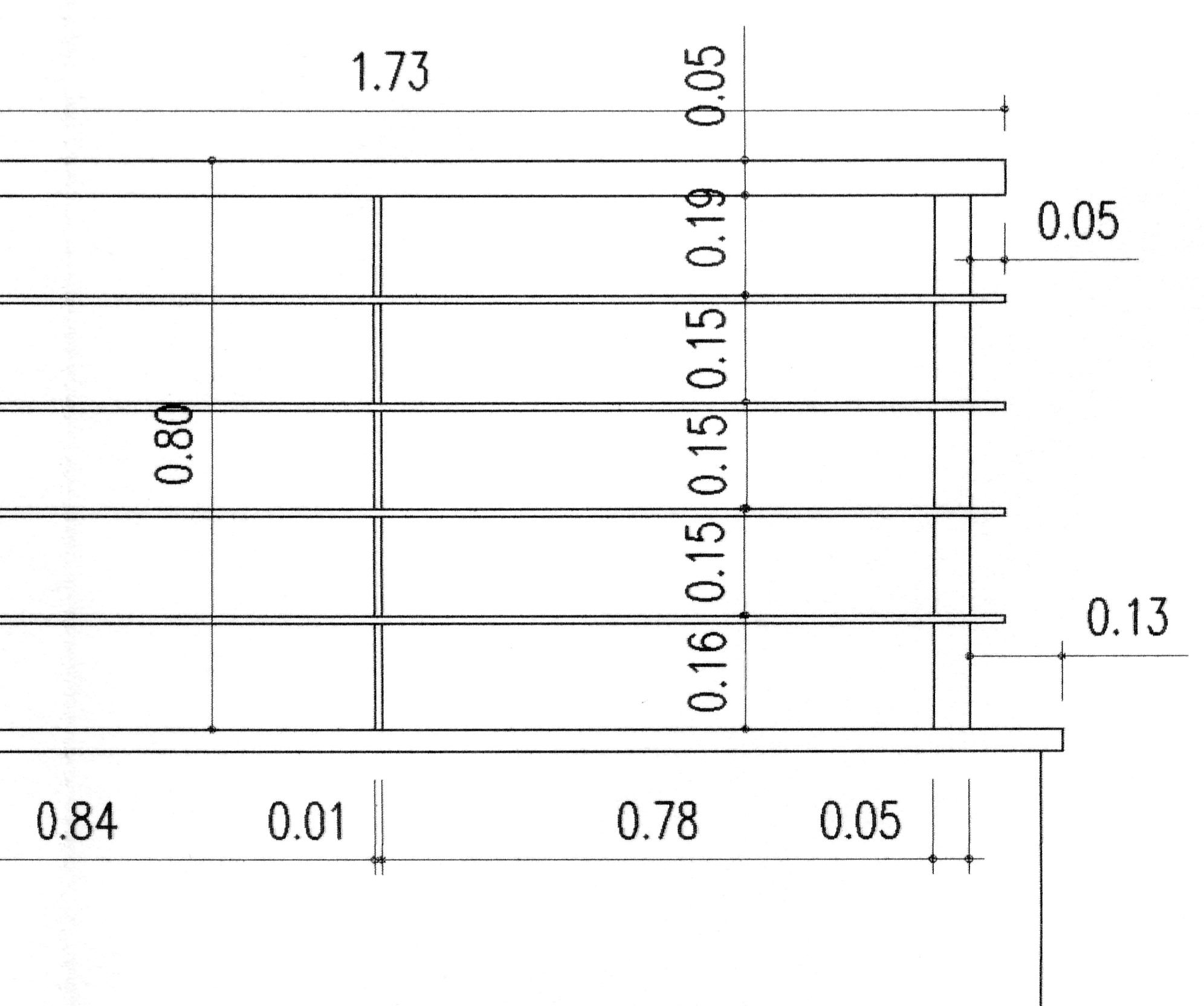
CONSTRUÇÃO GERAL
São desenhadas as plantas, cortes e alçados à escala 1:50 ou 1:20, cruzando a informação do projeto de estabilidade com o da arquitetura, indicando a constituição de todos os elementos apresentados (ex: ver onde é alvenaria de tijolo, betão, tijolo à face, caixa de ar, rebocos, outros revestimentos, caixas de estore, coretes de ventilação, coretes de fumos, coretes de esgotos, etc.) e numeração dos vãos exteriores e interiores para execução de mapa de vãos.
-
TETOS FALSOS
São desenhadas as plantas de todos os pisos, com indicação dos tetos falsos a executar, localizando nestes os pontos de luz, definindo o tipo de iluminação e material a usar nos tetos falsos.
-
PAVIMENTOS
São desenhadas as plantas de todos os pisos, com indicação da distribuição e estereotomia do chão e, no caso de haver mapa de acabamentos, descreve-se os materiais escolhidos para aplicação.
-
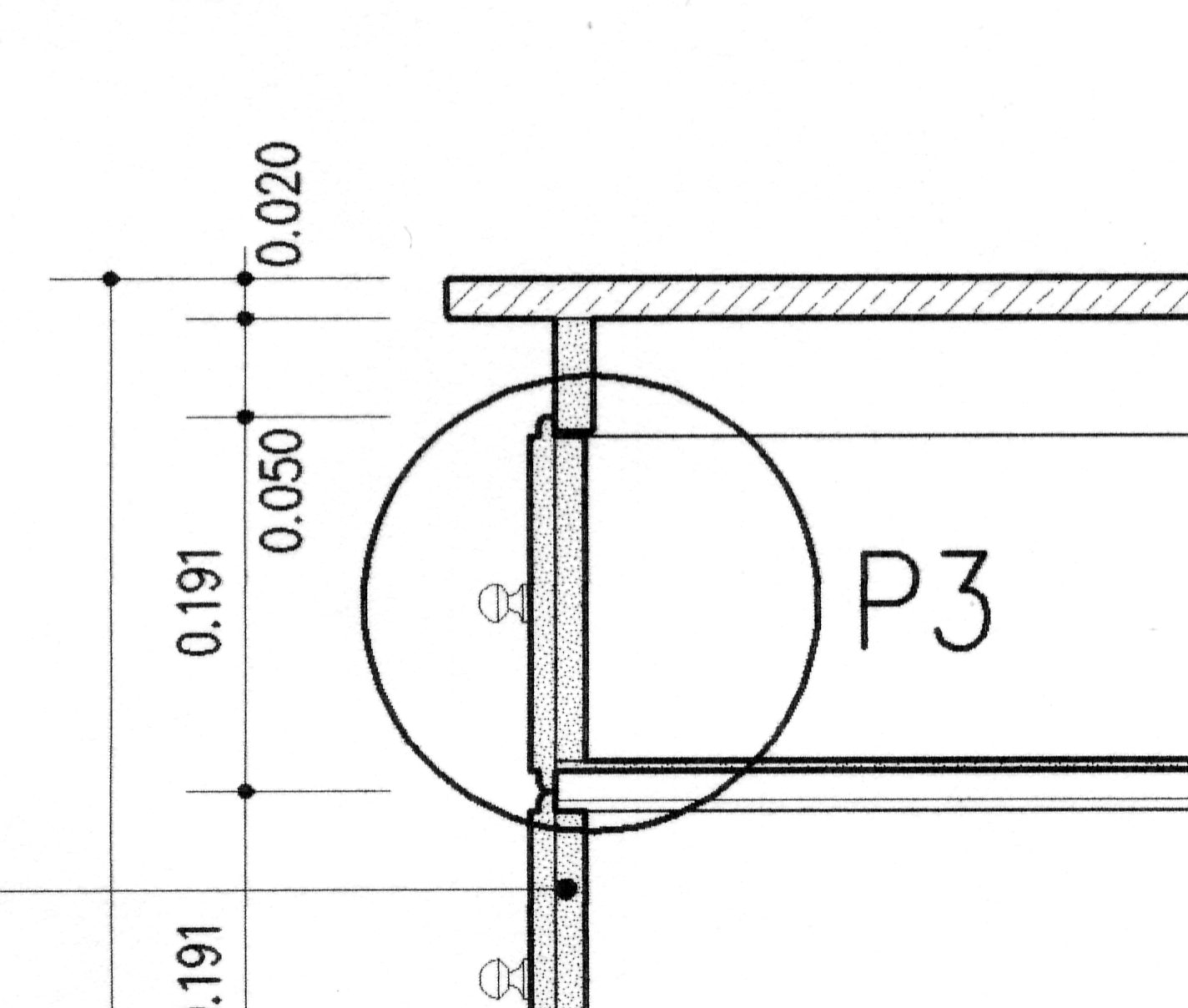
MAPA DE VÃOS
São desenhados todos os vãos interiores e exteriores, indicando as dimensões, o número de peças, o tipo de material, tipo de abertura, ferragens, o tipo de caixilhos, o tipo de vidro etc.
-
MAPA DE ACABAMENTOS
São definidos para toda a construção, os acabamentos a efetuar, nomeadamente nas paredes, tetos, pavimentos, rodapés, degraus, portas e guarnições, louças sanitárias, torneiras etc. É ideal para no caso do dono da obra pretender que a escolha de materiais seja efetuado pela perícia do executante do projeto (ex: escolher mosaicos, azulejos, madeiras, sanitários etc.).
-
COZINHA
É desenhada toda a cozinha em pormenor, com os armários e bancadas a executar, definindo as dimensões, os materiais, as formas, os acabamentos etc.
-
COZINHA 3D
Para visualização da cozinha por parte do dono da obra, antes de executá-la, serão fabricadas perspetivas realísticas.
-
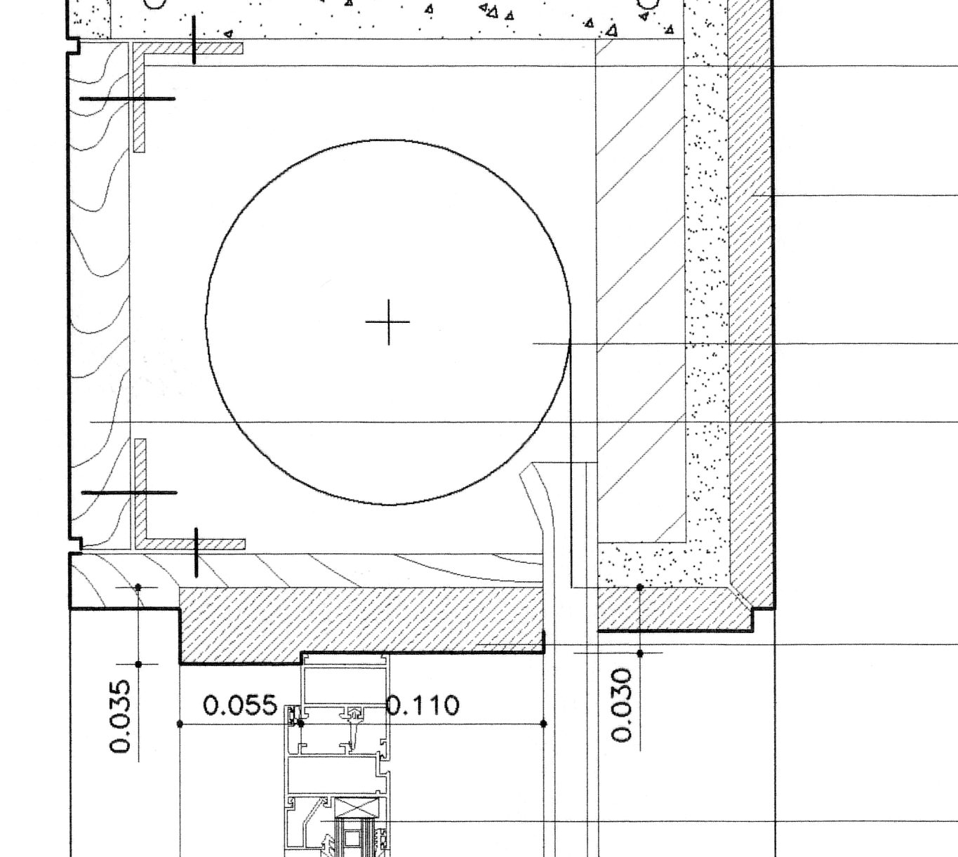
INSTALAÇÕES SANITÁRIAS
São desenhadas as plantas e alçados de todas as instalações sanitárias, definindo a estereotomia do chão, paredes e tetos. Está ainda associado pormenores construtivos para a execução da soleira da porta, do espelho, da bancada, etc.
-
CANTARIAS
São desenhadas em pormenor todas as pedras, associadas aos vãos (ex: vergas, ombreiras, peitoris e soleiras) e à sua colocação em alçado, com indicação do tipo de material e dimensões para corte da pedra.
-
ESCADAS E GUARDA
São desenhadas as escadas em pormenor, indicando as dimensões e materiais dos cobertores e espelhos dos degraus, assim como a forma e material da guarda/corrimão.
-
GUARDAS EXTERIORES
São desenhadas todas as guardas exteriores em pormenor, indicando as dimensões e materiais.
-
PORTA PRINCIPAL
É desenhada a porta principal em pormenor assim como portas secundárias que não sejam em caixilharia, indicando dimensões, o tipo, materiais, estereotomias, cores etc. É ainda desenhada a soleira principal.
-
PORTAS E GUARNIÇÕES
São desenhadas ao pormenor as portas e guarnições, indicando dimensões, o tipo, materiais, estereotomias, cores, acabamentos etc. Especificamente, são desenhadas as ombreiras, vergas e alçados da portas.
-
PORTÕES
São desenhados ao pormenor portões de acesso, assim como dos gradeamentos periféricos.
-
ROUPEIROS
São desenhados todos os armários encastrados, pormenorizando a planta, corte e alçado, indicando o material, estereotomia, acabamento e dimensões exatas.
-
MÓVEIS FIXOS
Poderão ser desenhados em pormenor alguns dos móveis fixos (ou não fixos), indicado o material, acabamento e dimensões.
-
OUTROS
Poderão ser desenhados pormenores de outros aspetos significantes.
